
Who we are
Sid Braaksma immigrated to Canada from Holland in 1952. After completing a four-year apprenticeship, Sid earned a Journeyman Machinist Certificate from the Southern Alberta Institute of Technology. It was in those early years that he turned his interest to modular structures and was able to sharpen his skills and learn the business.
In 1968, Sid invested all his assets into a supply business of trailer parts and by 1969, he was selling RVs. Sid also began renovating industrial modular buildings in a 9000-square-foot facility. He quickly recognized the potential in the modular structure market.
In 1970 Founder Sid Braaksma incorporated Northgate Trailer Industries Ltd. And spent most of his time selling and leasing recreational vehicles. In 1973, Northgate began offering field repair service to the petroleum and construction industries, then by fall he was leasing industrial modular buildings.
By 1976 Northgate Industries Ltd., began manufacturing modular structures, ranging from basic industrial trailers and camp facilities to more sophisticated complexes such as ofice, schools and medical facilities.
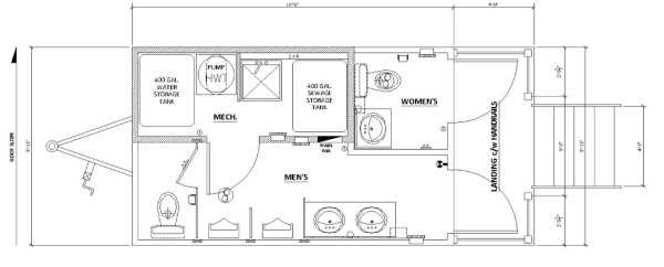
Lavatory
Call for pricing and leasing options 780-448-9222
Note: All units are subject to availability. Quick turnaround options available for new builds, call for more details.
We offer new, used, and custom modular buildings in a wide range of sizes and styles. Our experienced sales team will work closely with you to understand your needs and your budget, and make the process simple from start to finish.
Looking for more than just a job? At Northgate, we’re constantly growing and we’re always on the lookout for talented people who want to be part of something bigger. Join a team that values innovation, integrity, and impact.